Ref
Busco
Tipo
En
Zona
Habitaciones
Baños
Características
Precio

Quinta planta a estrenar en Salamanca prime (ref.1041_996)

Piso en alquiler en Madrid (Barrio de Salamanca)

8.990 €/mes
ref. 1041
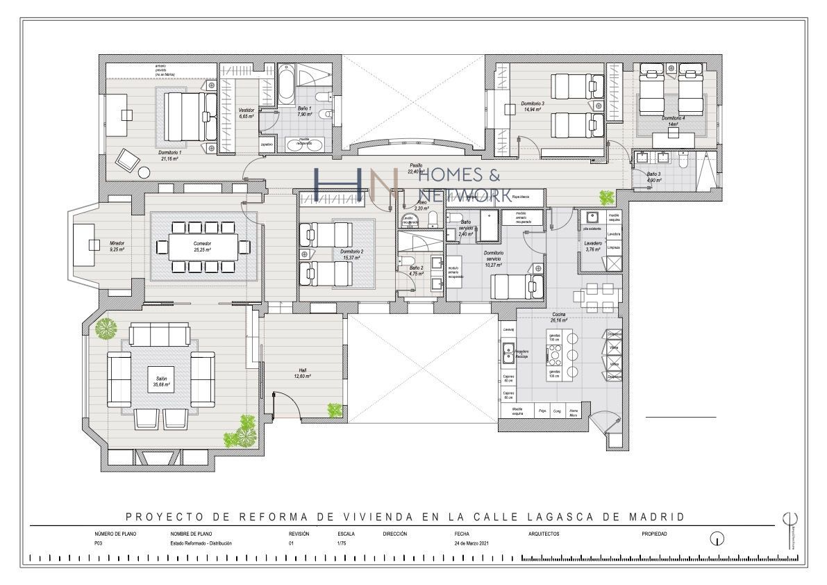
290 m2 construidos.
256 m2 útiles.
 
 Dormitorios 5
 Baños 4
 Calefacción Central
 Trastero
 Garajes 1
 Altura/Planta 5
Estado Buen estado
Ascensor
Aire acondicionado
Garaje
Calificación Energética Pendiente certificar

Precioso piso en alquiler que destaca por su luz y amplios espacios, con 2 vecinos por planta.

Se distribuye en un gran hall de entrada con luz natural que da acceso a un salón muy amplio y al comedor. Tiene chimenea y una amplia terraza/bow window. La cocina con office, tiene lavadero independiente y cuarto de servicio con su propia entrada y acceso a montacargas. 

El dormitorio principal es exterior y tiene un ventanal grande, vestidor y baño completo con ducha y bañera. Hay otras dos habitaciones que comparten un baño y otra más con baño en suite, dando todas a patios grandes y agradables. Aseo.

El piso tiene techos altos, suelos de pino melis. Amplia plaza de garaje rotatoria y gran trastero en la parte de arriba. Cuarto para bicis en el garaje. Vistas parciales al jardín de la Embajada Italiana

Año de construcción 1954. Portero físico. Hay video y plano. 

Si desea más información sobre esta propiedad, por favor, rellene el cuestionario: